Paper Sabi | Craft Study Centre, Farnham, UK
In this design project, the history of Farnham and The Chapter House will be studied, and the insertion method will be used to complete the “Old Meets New” in the space function under the premise of preserving the historical buildings. The idea is to promote the craftsmanship and environmental protection spirit of Farnham Town on a larger scale. This space is mainly designed for college students looking for ways to decompress, art creators and craft shoppers/lovers.
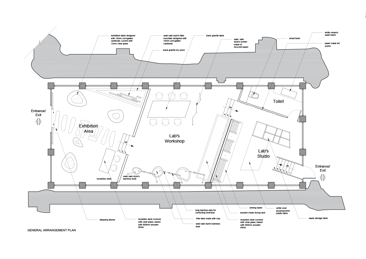
The client hopes to create a paper art research institute and shop by teaching the art of making recycled paper and recycled paper craftsmanship in class. On the one hand, users can gain a sense of accomplishment by reducing the pressure of making recycled paper. On the other hand, it allows users to use their imagination to make recycled paper into art.
The whole space includes three themes. Shredding (exhibition area), reunion (workshop area) and expansion (studio area). It is designed in the Japanese interior style of wabi-sabi bringing the Zen spirit design elements into the space to make people feel calm and relax in this space.





